3 - комн. начало пр. Правды, 4/9 эт. не угловая. (№ 212-996-830)

Ціна: 40 000 $
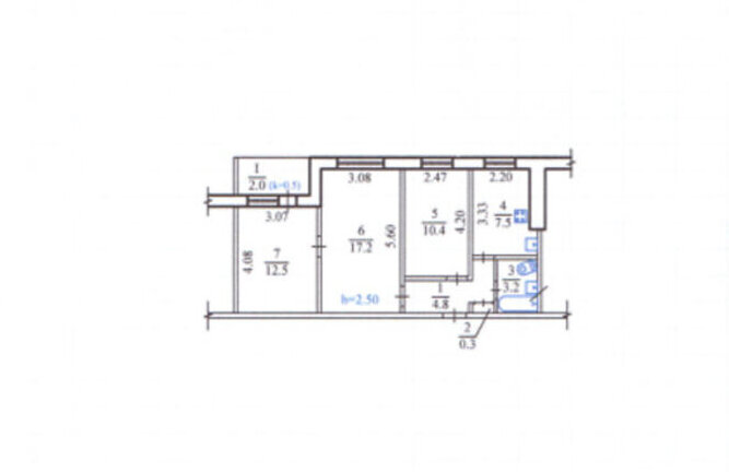
Характеристики
Ціна: | 40 000 $ |
---|---|
№ об'єкта: | 212-996-830 |
Кімнат: | 3 розд |
Поверх: | 4 / 9 |
Площа: | 58 / 40 / 7 м2 |
Санвузол: | 1 роздільний |
Балкон: | лоджія |
Адреса: Дніпропетровська, Дніпро, Індустріальний, пр-т Слобожанський - Початок, Воронцова
Продам 3-ком. квартиру под ремонт. Окна пластиковые. Раздельная планировка, санузел предельный.
Не угловая.
Право собственности более 3 лет.
Удобная транспортная развязка в любой конец города.
Рядом с Воронцовский пляж с парком, ТРЦ Вавилон и Набережная. Школа 500 м, детский сад – 200 м.