3 - комн. 65 м. кв. Ж/м Левобережный 3. (№ 213-086-571)

Ціна: 40 000 $
Характеристики
Ціна: | 40 000 $ |
---|---|
№ об'єкта: | 213-086-571 |
Кімнат: | 3 розд |
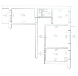
Поверх: | 4 / 10 |
Площа: | 65 / - / 9 м2 |
Санвузол: | 1 роздільний |
Балкон: | лоджія |
Адреса: Дніпропетровська, Дніпро, Індустріальний, Лівобережний 3, проспект Мира
3 - комн. 65 м. кв. Ж/м Левобережный 3. Можно под программы.
Продаю трёхкомнатную квартиру на Левобережном-3, проспект Мира (район Варуса).
Развитая инфраструктура, кольцо транспорта в любую точку города, рядом есть всё для комфортной жизни: садик , школа, магазины, рынок, поликлиника, и т.д.
Шикарная прогулочная аллея.
Самый лучший 4-й этаж 10-ти этажного дома.
Квартира очень теплая, аналогов на массиве нет.
По квартире выполнены следующие строительные работы:
- Осуществлено наружное утепление стен квартиры пенопластом 100 мм.;
- Осуществлена заменена радиаторов отопления на импортные чугунные, а также увеличено их количество;
- Установлены все металлопластиковые окна профиль Rehau;
- Заменены на металлопластиковые рамы балкона и лоджии;
- Осуществлена замена всех труб, включая стояков, на металлопластиковые трубы высокого качества;
- Осуществлена замена разводки канализации в санузлах на металлопластик.;
- Облицована, ванная комната, современным кафелем;
- Установлена акриловая ванна;
- В большой кухне (10 кв.м.) современный кафель над рабочей поверхностью;
- Балкон внутри обшит вагонкой из натурального дерева, под вагонку перед обшивкой дополнительно уложено утепление;
- Осуществлена замена проводки в санузлах, на кухне, балконе и лоджии;
- Установлены два бойлера на кухне и в санузле;
- Установлена новая, входная металлическая дверь хорошего качества (не Китай);
- Оборудована своя большая, вместительная межэтажная кладовка;
По квартире сделаны основные дорогостоящие работы, внутри необходим косметический ремонт.
Хорошие соседи. Подъезд в хорошем состоянии. Новый лифт.